项目设计中,我们经常会对FPGA进行功耗分析。FPGA的功耗与温度、使用的资源量有关,一般可以采用XPE工具进行前期的设计分析。
我们在SOM-404 JFM7VX690T80 FPGA核心板 设计时,使用功耗分析工具进行分析。条件如下:

以上是在85度环境下,各资源量用到95%情况下,2组64bit的DDR3,80路GTH全部使用进行评估。评估的结果如下:

以上我们可以看到,FPGA的功耗已经差不多75W。板载上还有DDR3、以太网PHY、时钟等芯片,加上电源的效率,也就是FPGA最小系统在满负载、85°温度下可能就是100W。
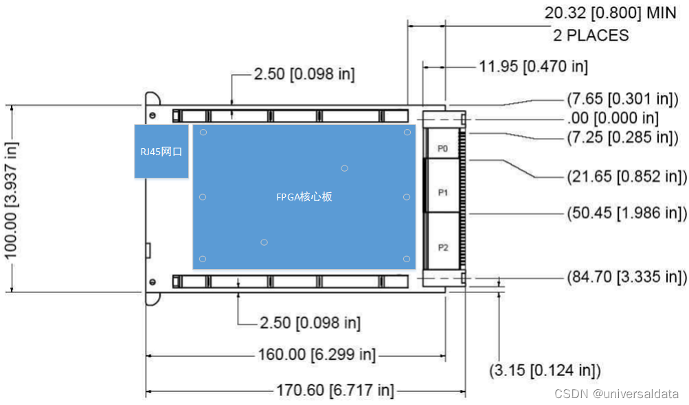
SOM-404为FPGA 690T的核心板,也可以单独供电使用,尺寸为80mm x 125mm,方便搭载3U VPX、3U PXIe等平台下使用。核心板上一个FMC+公插头,一个FMC+母插头,都满足VITA57.4、VITA57.1规范,即当SOM-404作为子卡时,可以插入到XILINX或AMD的载板上;当SOM-404作为载板时,标准的FMC子卡又可以插入到SOM-404上。


以上就铸就了SOM-404 核心板可以无限级联,多片690T FPGA可以级联下去,满足无限扩展的信号处理要求。

上图我们可以看出,JFM7VX690T80的80对高速接口全部用完,具有充分的扩展能力,整板电源和散热按照100W进行设计。SOM-404的主要技术特点如下:

SOM-404的时钟框图如上图所示。板载PLL完成了外部10MHz参考的锁相。通过RS485接口接收B码和1PPS信号,10MHz同步输入参考信号完成时间戳打戳。由于GTH的参考时钟来自于PLL,所以GTX的参考时钟可与外部10MHz同步相参。外部10MHz参考时钟一般来自于GPS/BD驯服模块。
通过以上的时钟网络,方便用于通信、天线拉远等应用。

当SOM-404搭载到3U VPX板上应用时,即可以满足风冷需求,也满足导冷的需求。


SOM-404板可以无限级联,即满足多片XC7VX690T或JFM7VX690T的需求,可应用于复杂的信号处理、信道分析模拟仿真、算法验证、GPU加速处理等场合。


下一篇:z3基础学习